Двухкомнатная квартира 53,00 м2 по ул. Косыгина 9 за 30500000 руб.

Двухкомнатная квартира по ул. Косыгина, 9 в Москве
Цена 30 500 000 р. (575 472 р./м2)
Подать заявку на ипотеку
Адрес Косыгина, 9
Этаж 12/16
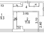
Площадь общая 53 м2, жилая 31 м2, кухни 7 м2
Кол-во комнат Двухкомнатная
Квартира с евроремонтом с панорамными видами на Воробьевы Горы. В квартире две изолированные комнаты, в спальне и коридоре обустроены системы хранения, санузел совмещенный, просторный холл, кухня со встроенной мебелью и всей бытовой техникой, все окна во двор, кондиционер, продается со всей мебелью, бытовой техникой и предметами интерьера. Просторные ухоженные входные группы, консьерж, видеонаблюдение, хорошие соседи, паркинг во дворе контролируется шлагбаумом, детские игровые и спортивные площадки, налаженная служба эксплуатации. Развитая инфраструктура, рядом парк Воробьевы Горы, школа и детский сад, поликлиника, до станции метро пять минут пешком, рядом много сетевых магазинов, фитнес-клуб, во дворе много парковочных мест, удобный выезд на основные транспортные магистрали города. Документы: договор купли-продажи 2018 года, полная стоимость в договоре, два взрослых собственника, подходит под ипотеку, свободная продажа, возможен оперативный выход на сделку, все документы для сделки собраны, никто не зарегистрирован. Если вы не смогли дозвониться, оставьте сообщение на сайте, я обязательно отвечу и верну вам звонок. Сопровождение сделки для покупателя бесплатно. Оказываем помощь и консультируем по вопросам получении ипотечного кредита и одобрения ипотеке. Обеспечиваем юридическую чистоту и безопасность сделки.
Описание дома
Этажность дома 16
Объявление № 23890958
Дата подачи:
2 февраля 2026 г. 4:21
Дата обновления:
2 февраля 2026 г. 4:21
Просмотров 3 Хотите продать быстрее?

Продавец
Агентство недвижимости:
ГУСЕВ ПЕТР АНДРЕЕВИЧ
Показать номер телефона
Пожаловаться
Комментарии:
Добавить